Rita ADU
Project Overview –Rita ADU Conversion & New Construction Project
- Year: 2025
- Project Name: Rita ADU
Location: Huntington Park , California
This project began with a series of old garages that residents had been using as storage for years. The owner wanted to upgrade the property and turn these underused spaces into something functional and livable. Our team redesigned the site and created two fully independent ADUs, along with a complete renovation of the existing garage structure.
Scope of Work
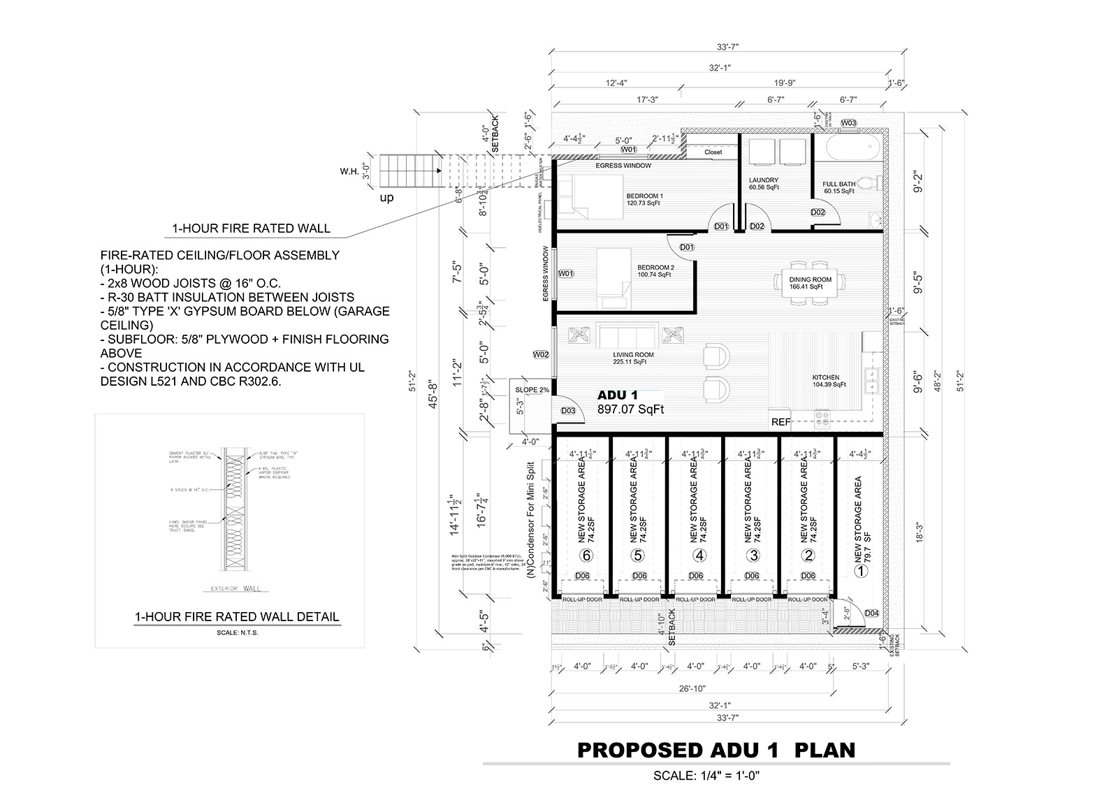
ADU 1 – 897 sq ft (Garage Conversion)
The existing garage was fully reworked into a complete living unit with new insulation, electrical systems, plumbing lines, and an entirely new interior layout. Every component—from ceiling assembly to finishes—was upgraded to meet current California codes.
ADU 2 – 482 sq ft (New Second-Story Unit)
Constructed above a reorganized first-floor storage area, this ADU features a compact and efficient plan, dedicated utilities, and modern lighting and ventilation.
ADU 3 – 567 sq ft (New Second-Story Unit)
A second upper-level ADU designed with generous daylight, smart space planning, and full separation from ADU 2 for privacy and comfort.
Storage Level – 511 sq ft
The lower-level storage area was cleaned, reinforced, and redesigned so it can safely support the new structure on top while still serving residents’ storage needs
Before
After
Upgrades & Technical Improvements
• New electrical layout including updated meters for each unit
• Full plumbing redesign with new sewer, water, and vent lines routed from Rita Avenue
• Structural strengthening with new joists, CMU walls, and roof assemblies.
• • Energy-efficient insulation, fire-rated gypsum board, and TPO roofing
• All work completed under 2022 California Building Code and Green Building Standards







Final Outcome
The transformation turned unused garages into clean, modern, and fully independent homes. Each ADU offers a private layout, efficient utilities, and a contemporary feel. The project adds meaningful housing opportunities while increasing the property’s overall value, showing how thoughtful design can completely redefine an overlooked space.