Single Family Residence
Year: 2023 Location: Florida
Project Overview
This waterfront development sits within an AE flood zone along a freshwater river, requiring all three structures, the main house, barn, and detached garage to be elevated above 37.7’ base flood elevation. The house and garage are raised approximately 2 feet, while the barn approaches a 3-foot elevation. Designing in flood-prone coastal Florida means respecting both physics and code. Every structural decision is intentional.
The project is governed by the 2020 Florida Building Code, demanding strict compliance across structural integrity, ADA accessibility, energy performance, and wind resistance.
Site Resilience
Materiality plays a central role. All three structures are primarily CMU block construction Florida standard for durability, moisture resistance, and termite protection. Conventional wood framing was removed from wall assemblies where feasible and replaced with block construction to meet regional best practices. Roof systems utilize engineered trusses for cost efficiency, mechanical coordination, and structural performance.
Because this is a working marina, marine-grade pressure-treated lumber is specified for exterior wood components, and all fasteners and straps are hot-dip galvanized or stainless steel to resist corrosion in a humid, riverfront environment. Durability here isn’t optional—it’s engineered in.

Design Parameters
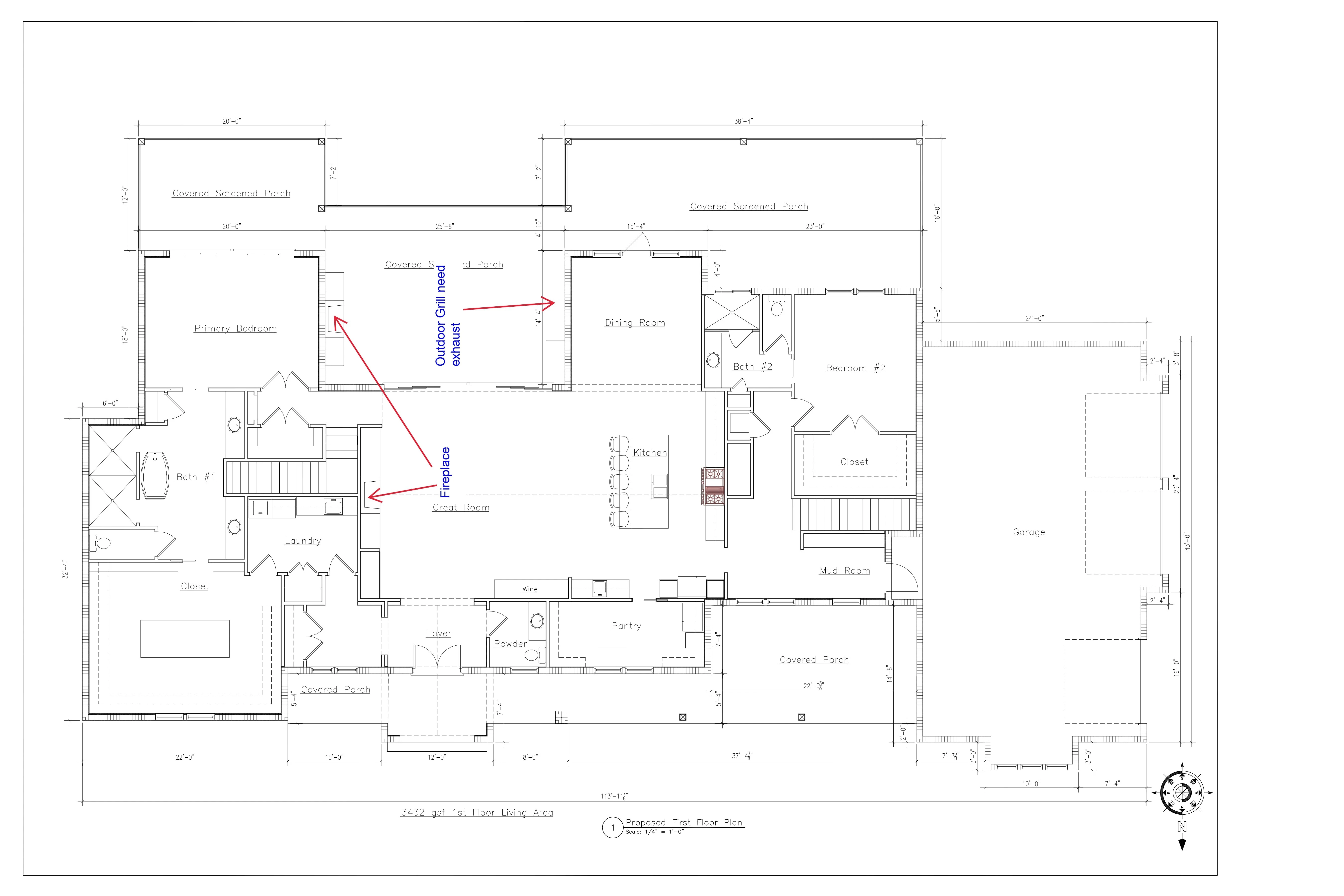
The architectural design balances strength with elegance. The main house features 11’6” ceilings and floor-to-ceiling windows, with a dramatic 20-foot-wide sliding glass door anchoring the family room. The barn, limited to 1,200 sq ft, includes two additional stalls and a reconfigured kitchen, while the four-car garage with 12-foot ceilings complements the other structures.
Roof slopes are set at 12/8 with careful adjustments for symmetry, and window placement was refined to match final renderings and energy performance requirements. Interior spaces emphasize openness, with light-filled landings and finished ceilings that create a welcoming, airy environment.