Willow Park Community
Introduction
Willow Park Community is a tranquil residential development located in Willow Park, Texas—an area defined by its vast suburban landscapes and rich natural greenery. This private community offers an exclusive selection of luxury bungalows, lifestyle amenities, and serene, therapeutic surroundings.
In this article, we will present the site analysis, project concept, design development process, and finally, the proposed design along with its advantages.
Site Analysis
The project site lies in Willow Park, Texas, an area known for its lush greenery, diverse tree species, and gentle hills..
As shown in Figure 1, the site is connected to a main road, with a smaller road encircling the community to provide convenient entrances and exits.
Architectural & Exterior Details
The sun path—illustrated in Figure 2—shows sunrise from the southeast and sunset toward the southwest, influencing the building orientation and shadow patterns.
The region experiences hot summers and cold winters, with temperatures reaching up to 95°F (35°C) in summer and dropping below 36°F (2°C) in winter, accompanied by high precipitation.



Project Concept
The design concept draws inspiration from California-style bungalows, a housing trend popular across the United States between 1890 and 1950. These homes are celebrated for their seamless connection to nature, calm atmospheres, and comfortable living environments.
Key characteristics of California-style bungalows include:
● Garden-focused design
● Balanced exterior proportions
● Wooden interiors
● Prominent front porch
● Sloped roof
● Exposed roof structure (beams and rafters)
● Open floor plan
These principles guided the design of the Willow Park Community, emphasizing natural light, openness, and harmony between architecture and landscape.
Design Development
To embody the bungalow’s garden-centered lifestyle, a central courtyard was introduced as the heart of the community. The site accommodates 17 bungalows—seven on each side and three along the southern edge.
The main design challenge was to create an open floor plan with abundant natural light and fluid connectivity between spaces. Each bungalow features a courtyard-facing façade with rear parking for two vehicles.
Three spatial layout alternatives were developed:
Alternative 1:
Bedrooms face the courtyard for pleasant views and daylight, while the living room and kitchen are located at the back.
Alternative 2:
The kitchen and living room face the courtyard, placing the bedrooms at the rear. This configuration enhances daylight in social spaces and provides a more inviting atmosphere.
Alternative 3:
The living room alone faces the courtyard, while the kitchen is slightly recessed to allow more space for seating and dining.
After evaluating these options, Alternatives 2 and 3 were selected for further refinement.
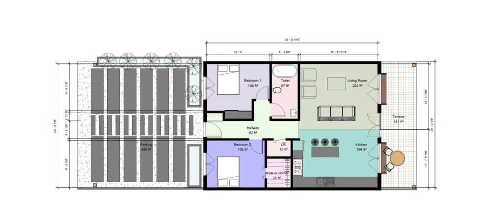
In Alternative 2, two rear bedrooms—one with a walk-in closet—complement an open kitchen and living room facing the courtyard. The centrally located bathroom and laundry room occupy areas that do not require direct sunlight.
Alternative 3 maintains the same bedroom layout but expands the living and dining areas, improving comfort and usability
Facade Development
Several façade treatments were explored to best express the California bungalow aesthetic:
- Option A:
Offers larger interior spaces but reduces the size and connectivity of the front porch. - Option B:
Provides a generous porch area but lacks alignment with the classic bungalow style. - Option C (Final Choice):
Balances space and style—featuring exposed structural elements, a covered porch, a sloped roof, and a loft-style storage area illuminated by a large window.



Proposed Design
The final design plan harmonizes interior functionality with aesthetic appeal. Each bungalow includes:
- Spacious, well-connected rooms
- Floor-to-ceiling windows for maximum daylight
- A luxurious layout with a walk-in closet and a full bathroom
- An open kitchen with a central island, offering both workspace and casual dining
The rendered visuals illustrate the final design, showcasing the warmth of wooden interiors and the relaxed, nature-blended atmosphere characteristic of California-style bungalows.


